BADRINATH TEMPLE

PROPOSED TEMPLE LAYOUT

Front Elevation(EAST)

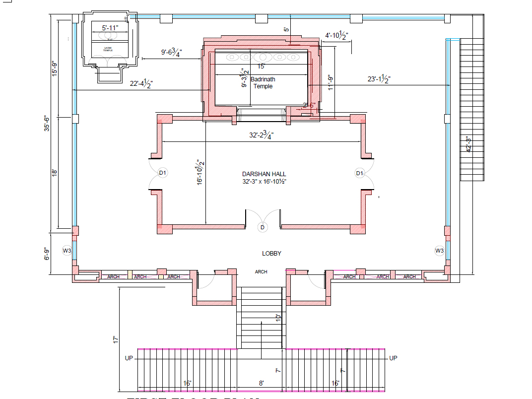
First Floor Plan(Area 2700 Sft)

Ground Floor Plan(Area 2700 Sft)

North Side Elevation

South Side Elevation

West Side Elevation

WORK PROGRESS

Bhoomi Pooja

Foundation Progress

Ground Floor Progress

First Floor Progress

Complete Structure

Current State

Gallery

OUR PATRONS

Uttarakhand Kalyankari Sanstha is patronised by some of the honorable and respected people of Uttarakhand settled in Hyderabad like:

Hon'able Patrons


Shri Anil Chandra Punetha

(Retd)Chief secretary Andhra Pradesh / Chief information commissioner Uttarakhand

Shri Samsher Singh Rawat

IAS Principal Sec, AP Govt.

Shri Sunil Sharma

IAS Principal Sec, Govt of Telangana

Smt. Abhilasha Bisht

IPS IG-Telangana Special Police

Shri Rajeev Benjwal

IRS Addl. Commsiddioner -IT, Hyderabad

Shri Vijay Parsad Dimri

Geophysical Scientist, Padmasri Awardee

Shri Rakesh Mohan Dobriyal

IFOS Addl. PCCF. Govt Of Telangana

Shri Mohan Chandra Pargain

IFOS Addl. PCCF. & CF. Govt. Of Telangana

Shri Chandra Balabh Malashi

IFoS(Retd)

Dr. Sanjeev Kumar Khulbe

Cardio Throacic Surgeon, Appollo Hospital

Founder Patrons


Shri Acharya Barhmanand Ji Lasiyal

Jyotish & Karmkand Visheshagya

Shri Acharya Prakash Chandra Badoni Ji

Jyotish & Karmkand Visheshagya

Shri Chandridutt Dangwal Ji

Business

Shri Ram Singh Shah Ji

Builder

Shri Roshan Singh Negi Ji

Architect

Shri Balbir Prasad Painully Ji

Architect

Shri Sundar Singh Nayal Ji

Business

Shri Rajender Prasad Dobhal Ji

Operation Head-Logistic VRAI Cement Carriers LLP

Shri Shashi Prasad Juyal Ji(Retd.)

Director (Retd.), Directorate of Oilseeds Development

Shri Chandra Shekar Khandpal Ji

Business

Shri Dayaram Kala Ji

Retd Employee

Shri Satyanarayann Petwal Ji

Advocate

Shri Shailender Prasad Lashiyal Ji

Advocate

Board Members:


Shri Vikram Singh Unal Ji

President

Shri Vinod Singh Negi Ji

Vice-President

(Late) Satyanarayana Singh Mall Ji

Gen Secretary

Shri Dhruv Singh Chauhan Ji

Joint Secretary

Shri Rikeshwar Prasad Petwal Ji

Treasurer

Executive Members:


Shri Anil Kumar Bhandari Ji

Shri Anil Singh Mall Ji

Shri Bhavani Prasad Lashiyal Ji

Shri Raghuveer Singh Rawat Ji

Shri Manmohan Kundaliya Ji

Shri Bhagwan Singh Pawar Ji

DONATION

Temple is being constructed from the donations received in cash and kind from the doners mainly from Uttarakhand community people, from friends , NGOs, Pvt. organisations etc.

Uttarakhand Kalyankari Sanstha has incorprated few privilages for special donars, who gave and will give donations in cash or kind for temple construction, like we have selected 5 types of donors who's name will be incorporated in the wall of fame 1)Diamond Donor 2) Platinum Donor 3)Golden Donar 4)Silver Donor 5)Bronze donors. Donors who are willing to donate in kind like idol Donor , Compound Wall Donor, Room Donors,Temple dome donor, cement, bricks etc. names of these donors will also be incorporated on the wall of fame and they can enjoy same special privilages as per the expenses incurred for their donation in kind(maximum previlages as per diamond donors). Prvilages for donors as fixed by sanstha for life long. The name of donors in kind will be inscribed on a spparatted wall of fame.

Diamond Donors

Rs 5,00,000

Platinum Donors

Rs 2,50,000

Golden Donars

Rs 1,50,000

Silver Donors

Rs 1,00,000

Bronze Donors

Rs 51,000

Let's Donate

All the Cash/Cheque can be directly deposited in Uttarakhand Kalyankari Sanstha's,

A/C No. 07001450000010 | HDFC Balanagar Branch | IFS Code:HDFC0000700

CONTACT US